96 Park Rise
Status
Uncomplete
Locatoin
Campbells Bay
Project Type
Subdivision Developments

Project description
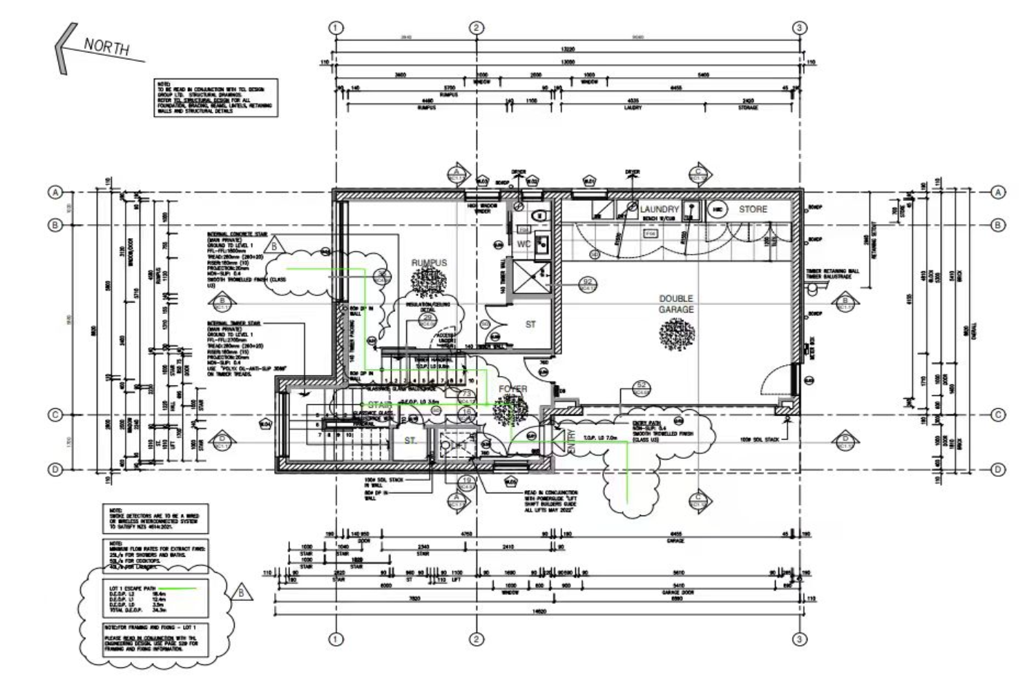
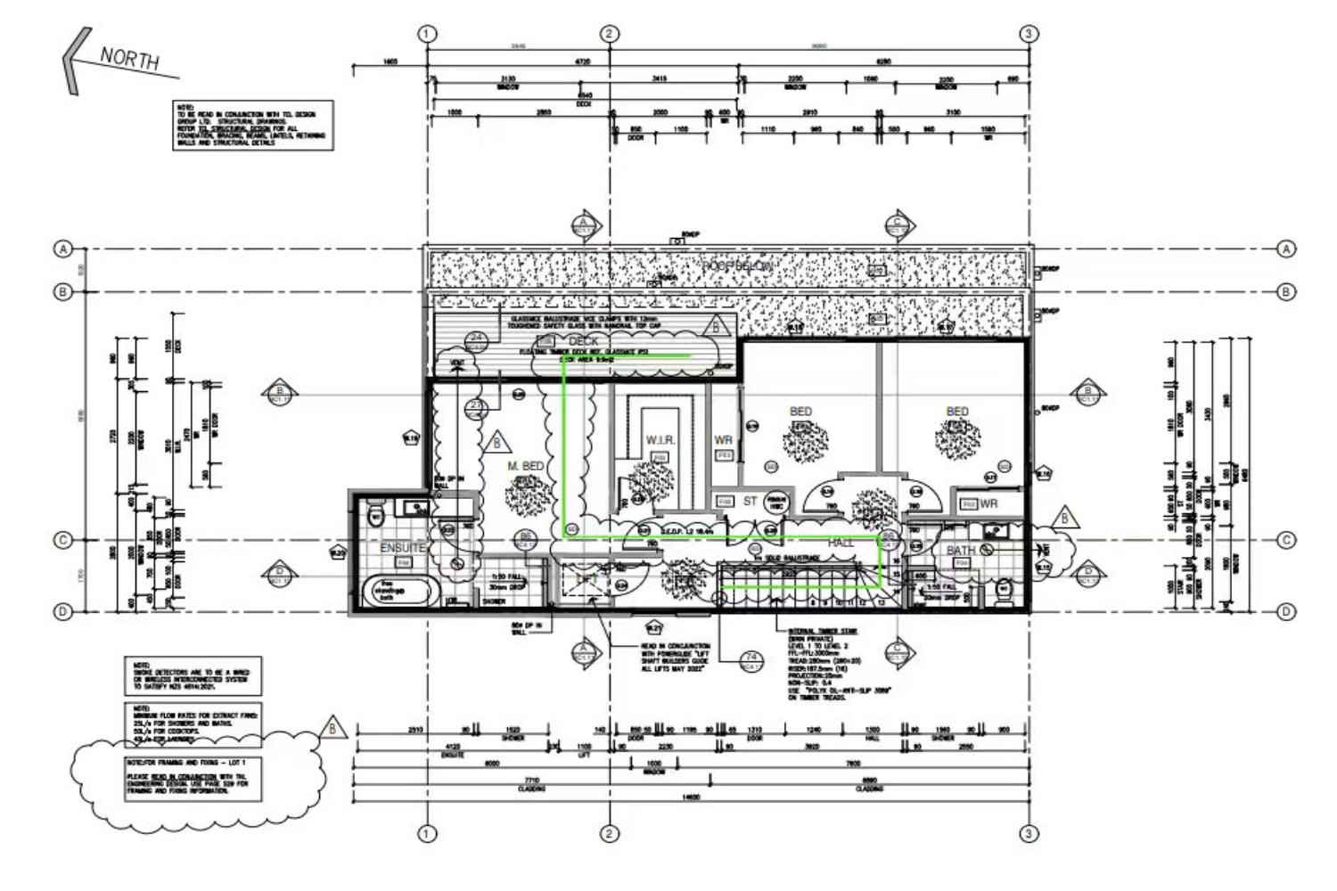
Be6 Group Ltd. is currently undertaking the construction of three brand-new freehold luxury residences at 96 Park Rise, Campbells Bay, one of Auckland’s most prestigious North Shore suburbs. The project commenced in 2025 and is scheduled for completion in November 2026.
Designed with a focus on modern architecture, each home emphasizes both functionality and comfort. Spacious layouts combined with expansive glazing maximize natural light and capture uninterrupted views of Rangitoto Island and the Hauraki Gulf.
As the construction company, we adhere strictly to New Zealand building codes, prioritizing structural integrity, quality workmanship, and environmental considerations. Sustainability and attention to detail are embedded in every stage of the construction process, ensuring that the project achieves enduring value.
For more information about the development, please visit: https://www.trademe.co.nz/a/property/residential/sale/auckland/north-shore-city/campbells-bay/listing/5517588106
The 96 Park Rise development represents a thoughtful integration of contemporary living with New Zealand’s iconic coastal landscape, and reflects our ongoing commitment to excellence in premium residential construction.
Key Details
- Location: Campbells Bay
- Project type: Subdivision Developments
